Bankwerkerij 83 1021NT Amsterdam
Kantoor te koop aangeboden op Bankwerkerij 83 in Amsterdam
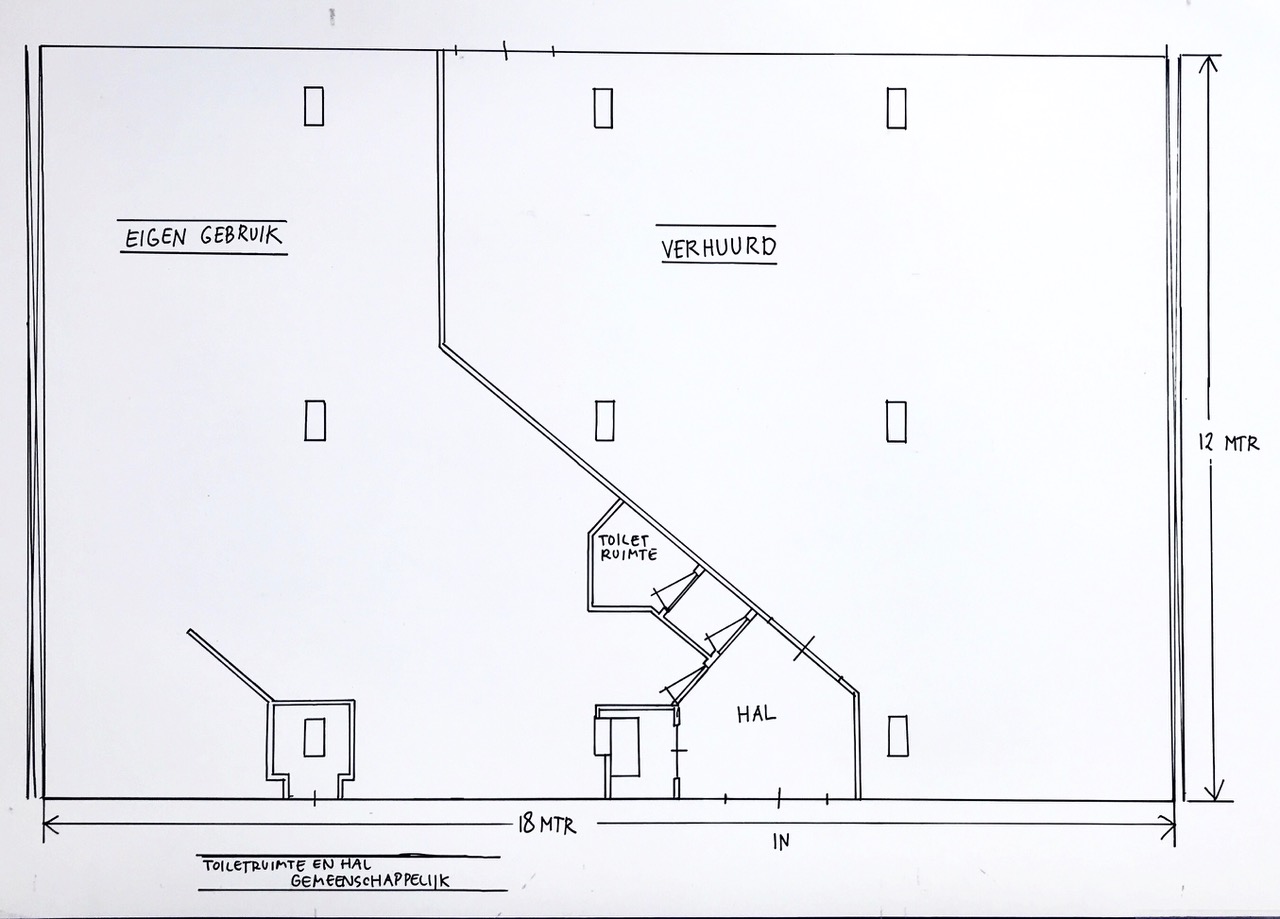
Deels verhuurde en deels leeg op te leveren bedrijfsruimte welke volgens het bestemmingsplan op de eerste bouwlaag bestemd is voor dienstverlenende doeleinden.
Het appartementsrecht maakt onderdeel uit van de onder vereniging de eigenaars "Het Dok" Deze VVE heeft een professioneel beheerder, beschikt over een Meer Jaren Onderhoud Plan en over voldoende financiële middelen om in dat geplande onderhoud te voorzien. De servicekosten bedragen € 635,24 per maand.
De ondergrond is eigendom van de gemeente Amsterdam die het perceel in voortdurende erfpacht heeft uitgegeven onder de Algemene Bepalingen van 1994. De erfpachtcanon is afgekocht tot 30-11-2099.
De gehele ruimte is gelegen op de begane grond
Een gedeelte van de bedrijfsruimte is verhuurd aan Apotheek "Ardalan"
Het andere deel, circa 90 m2 is in gebruik bij verkoper en zal leeg worden geleverd.
De apotheek en de lege ruimte hebben elk een eigen entree
De lege ruimte is voorzien van een keukenblok en meterkast, verder is het een open ruimte momenteel in gebruik als fotostudio, het toilet wordt gedeeld.
De ruimte beschikt over een energielabel A++ geldig tot 13-11-2035.
Het appartementsrecht is onderdeel van een vrijstaand wooncomplex met een apotheek en een artsenpraktijk op de begane grond
Aan de voorzijde is een parkeerterreintje gelegen, parkeren is uitsluitend tegen betaling mogelijk.
Op loopafstand is een halte van de bus met aansluiting op de Metro, diverse supermarkten en de pont over het IJ.
De aansluiting op de A-10 en de IJ-tunnel is op 2 minuten rijden.
De omgeving zal een zeer positieve ontwikkeling door gaan maken. Het "Hamerkwartier" zal worden getransformeerd van een industriegebied naar een moderne woon/werk omgeving. De eerste projecten zijn reeds uitgevoerd.
Kenmerken
| Aangeboden als | Koop |
|---|---|
| Koopprijs | €765.000 kosten koper |
| Oppervlakte | 200 m² |
| Bouwjaar | 1987 |
| Gebruiksdoel | Kantoor |
| Overige gebruiksdoelen | Belegging |
| Buurt | IJplein e.o. |
| Wijk | IJplein/Vogelbuurt |
In de buurt
De 10 meest populaire buurten in de omgeving om een kantoor te kopen zijn: Felix Meritisbuurt (38), Coenhaven/Mercuriushaven (36), Leliegracht e.o. (33), Buiksloterham (27), Van Loonbuurt (27), Alfa-driehoek (24), Cornelis Douwesterrein (24), Bedrijvengebied Cruquiusweg (22), Papaverweg e.o. (21), Oostenburg (19)
De 9 meest populaire bedrijventerreinen in de omgeving om een kantoor te kopen zijn: Minervahaven Hempoint (35), Bedrijventerrein Cruquius (30), Papaverweg/Metaalbewerkerweg (17), Cd 2-3 (16), Buiksloterham (14), Sloterdijk I (14), Hamerstraat (12), Cd 0-1 (8), Ndsm (7)
Over Amsterdam
Amsterdam heeft een oppervlakte van 219,53 km2 met ruim 873.338 inwoners.
Waar in Amsterdam staat ruimte te huur of te koop?
Albert Cuypstraat (23) , Asterweg (23) , Cruquiusweg (23) , Nieuwezijds Voorburgwal (18) , Kinkerstraat (16) in totaal van 0 straten
Vragen of opmerkingen
Zoekt u een kantoor te koop in Amsterdam? We bieden u nu een unieke ruimte aan te Amsterdam. Dit kantoor heeft een totale beschikbare oppervlakte van 200 m² te koop en ligt op Bankwerkerij 83 in Amsterdam.
Heeft u interesse in dit object, vul dan het aanvraagformulier in. Wij brengen u rechtstreeks in contact met de makelaar of eigenaar van de ruimte zodat u direct een bezichtiging kunt inplannen of extra informatie kunt opvragen. Deze info niet juist?
Klik hier indien bovenstaande informatie niet juist is en u ons hiervan op de hoogte wilt stellen.